You wont see this price point ever again!

Property Highlights:

  • 🏡 Spacious 3,188sqm block – registered & ready to build

  • 🔌 Serviced with underground power, NBN & full-pressure town water

  • 🌿 Peaceful bushland surrounds in a private, family-friendly street

  • 🚗 Just 30 minutes to Brisbane CBD

  • 🛠️ Full flexibility with CJ Homes – customise your plan at no extra cost or choose from a wide range of designs

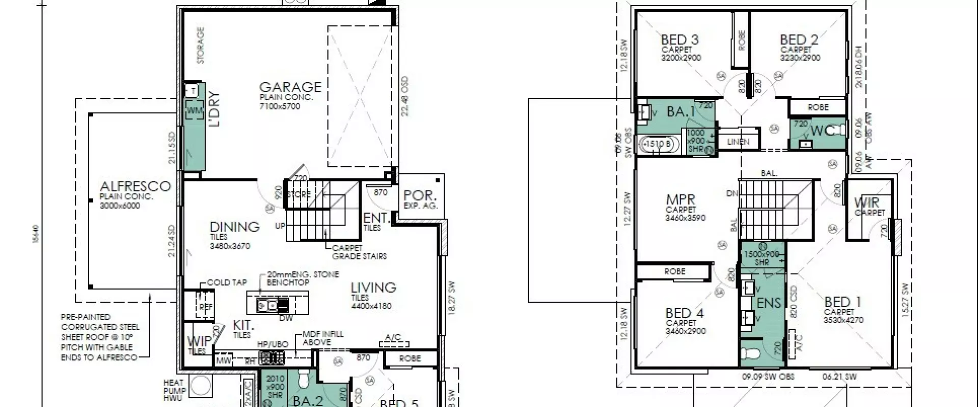
  • Beautiful custom Design, featuring five spacious bedrooms, Chefs kitchen, open plan living / dining area opening to the alfresco, two master bedrooms one on ground floor features a two way bathroom, activity room on first floor plus another master bedroom and ensuite and three bedrooms.

Whether you’re dreaming of extra space for the kids, a shed, or simply a more peaceful lifestyle, this is your chance to have it all without sacrificing convenience.

 • FULL TURN KEY – FIXED PRICE
• Fixed Price Site Works including all soil types (S, M, H1 & H2), all retaining and piering as required
• HSPT system 
• Driveway  
• Barrier & Fly Screens & Blinds
• 900mm Westinghouse Stainless Steel built in Oven, stove top & ducted rangehood
• 400 sqm turf surrounding house, clothesline, & letterbox
• Quality carpet to bedrooms & tiles to living, bathroom and hallways
• Kitchen with custom overhead cupboards
• Ceiling Fans to bedrooms, living areas and Alfresco

Plus much much more...

Take the plunge, this beautiful home will provide the ultimate acreage lifestyle coupled with the comfort of city amenities. Greenbank Shopping Centre is just 5 minutes away for access to everyday necessities such as Woolworths and medical facilities. An exceptional range of primary and secondary schools, as well as childcare facilities are only a short drive away too.  Just 33km to Brisbane City and 1hr drive to the heart of the Gold Coast with beautiful beaches.

For specialty shops, endless family entertainment and essential public transportation, Springfield Central is just 15 minutes away. Here residents can find Orion Shopping Centre, Bunnings, the Orion Lagoon, monthly markets, Timezone, Event Cinemas, and Springfield Central Rail Station. A number of tertiary education facilities are within this vicinity also.

**Photos are indicative use as they were taken from a similar home by the builder, some variances and inclusions may differ to the actual home**


QBCC number 1062071

5 3 2 3,188 m2
Suburb New Beith
Price $1,120,200 Full Turn Key
Property Type Residential
Property ID 2844
Category House And Land Package
Land Area 3,188 m2
Floor Area 243 m2

Agent Details

Sharlene Leeson photo

Sharlene Leeson

0409 642 779
View Profile