Just Listed

FIXED PRICE CONTRACT, FULL TURN KEY SPLIT LEVEL HOME RIDGEVIEW ESTATE

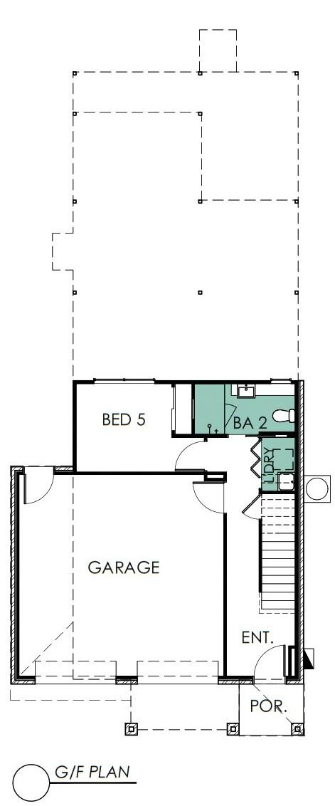
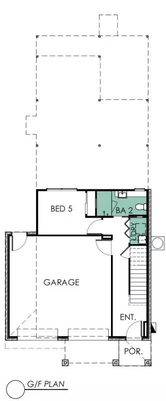
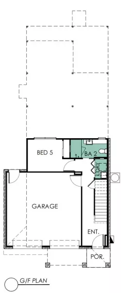
EDMUND 204M2 SPLIT LEVEL HOME 5 BED, 3 BATH,  

FIXED PRICE CONTRACT, FULL TURN KEY

  • ALL SITE WORKS INCLUDED UP TO H CLASS SLAB
  • METRO  FACADE, 
  • SPLIT SYSTEM A/C INC
  • ENGINEERED STONE BENCH TOPS to KITCHEN
  • 900mm WESTINGHOUSE COOKTOP & OVEN
  • 900mm WESTINGHOUSE DUCTED RANGEHOOD
  • UPGRADE TO BATHROOM FITTINGS
  • TILED NICHE RECESS TO SHOWERS
  • LED LIGHTS, CEILING FANS THROUGHOUT
  • LANDSCAPING, DRIVEWAY, 
  • UPGRADED BATHROOM FIXTURES
  • BARRIER SCREENS, DISHWASHER
  • NO MORE TO DO BUT MOVE IN

Please Note: This is a House and Land Package only, the home has not been constructed, the buyer will be required to purchase the land separately,"the land advertised in the package is subject to availability and the land price will need to be confirmed by the Owner of the land"  a separate Building Contract with CJ Homes will be required. All information is subject to change without notice. Terms and conditions apply.

Please note - Conditions Apply: All images used are for illustrative use only, All Purchasers are subject to Contract terms. CJ Homes is solely responsible for all matters relating to the building contract only. All information is subject to change without notice. Terms and conditions apply. Price is subject to 7 Star Energy Rating Report specific to the design to be built. Price is held for a period of 6 months subject to land registration and exchange of land title

FIXED PRICE CONTRACT includes ALL SITE COSTS UP TO H CLASS SLAB

BAL 12.5 BUSHFIRE RATING INCLUDED

ACOUSTIC CAT 1 & CAT 2 REQUIREMENTS INCLUDED

NO HIDDEN COSTS, NO EXTRA COSTS OR FEES

NO PROVISIONAL SUMS OR ALLOWANCES

FLEXIBILITY IN DESIGNS, MODIFICATIONS AND INCLUSIONS


Here at CJ Homes we aim to make your building experience simple, stress-free, and enjoyable. We offer fixed-price contracts, turnkey solutions, and high-quality inclusions with no hidden costs. Customers receive an electrical layout before signing, including LED lighting and ceiling fans. 

With a wide range of contemporary designs that can be easily modified at no extra cost, CJ Homes saves clients thousands in drafting fees. They also offer fully custom builds, transforming your concepts into professional plans free of charge.

CJ Homes is known for quality, affordability, and ethical building practices. Backed by over 20 years in the industry, their team provides honest, expert guidance to help clients achieve their dream home.

They prioritize customer satisfaction, offering flexible design alterations at no charge. 

**Conditions Apply**

 

 

 

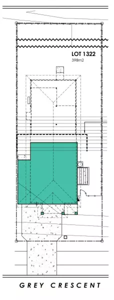
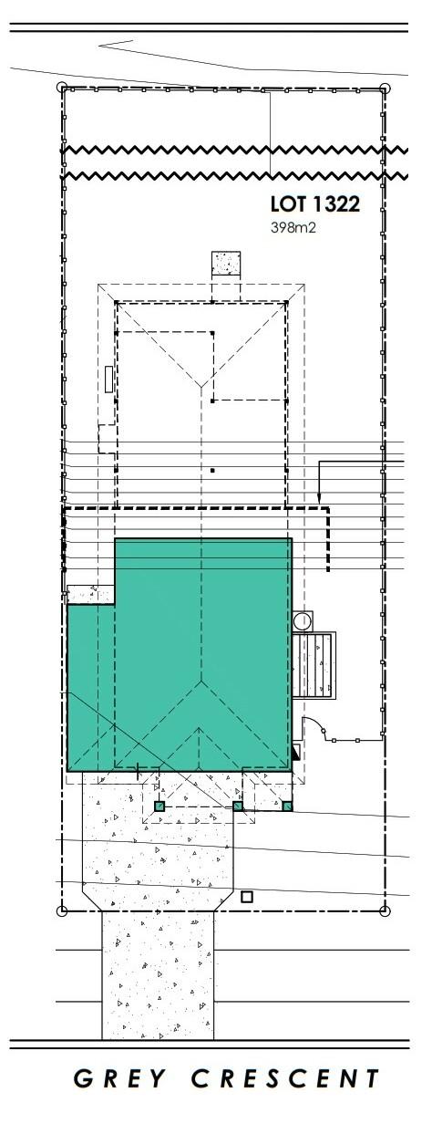
5 3 2 398 m2
Suburb Narangba
Price FIXED PRICE CONTRACT $986,060
Property Type Residential
Property ID 2853
Category House And Land Package
Land Area 398 m2
Floor Area 204 m2

Agent Details

Peter Hollow photo

Peter Hollow

0455 077 956
View Profile